Киров, ОЦМ м-н, Полевая улица, 6
Обзор квартиры в "ЖК По ул Полевая"
Продается 2-комнатная квартира в новом жилом комплексе "ЖК По ул Полевая" 🏢.
Квартира расположена на 8-м этаже 11-этажного дома.
Прекрасный выбор для комфортной жизни.
Удобная планировка
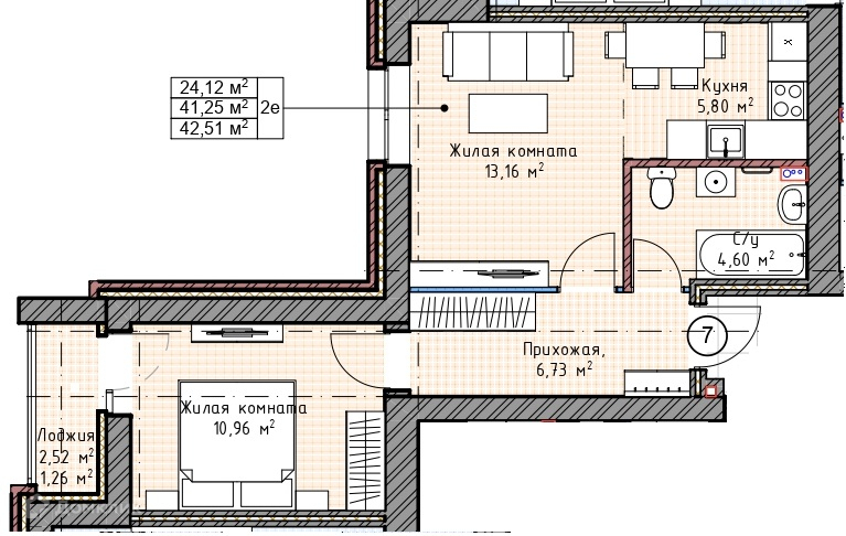
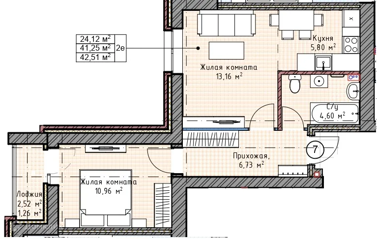
- ✅ Общая площадь: 41.25 м².
- ✅ Просторная жилая площадь: - м².
- ✅ Кухня: - м² — место для кулинарных шедевров.
Преимущества квартиры
- 🔧 Вариант отделки: без ремонта. Готовая база для вашего интерьера.
- 🌞 Увеличенные оконные проемы наполняют помещения естественным светом.
- 🌿 Класс жилья: Эконом — благоустроенная территория.
Финансы и ипотека
- 💳 Ипотека от 19 241 руб/мес.
- 🏦 Доступны льготные программы господдержки.
- 🤝 Эскроу-счета гарантирует спокойствие.
Чтобы узнать подробности и проверить актуальную стоимость — свяжитесь с нами прямо сейчас! 📞
Характеристики новостройки в ЖК По ул Полевая
- Номер квартиры: 47
- Вариант отделки: без ремонта
- Общая площадь: 41.25 м²
- Жилая площадь: - м²
- Площадь кухни: - м²
- Класс жилья: Эконом
- Количество комнат: 2-комнатная квартира
- Этаж: 8
- Этажность дома: 11
Полезная информация о ЖК По ул Полевая